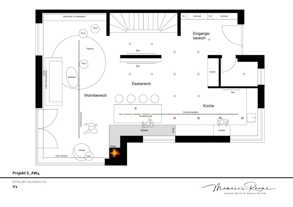
Im Projekt Steinbach wurde ich beauftragt die Möblierungsplanung des kompletten Erdgeschosses mit Wohn- und Essbereich und offener Küche sowie dem Bad im Obergeschoss zu übernehmen.
Meine Kundin liebt das Kochen und das Empfangen von Gästen.
Mein Fokus im Erdgeschoss lag also in der Ausarbeitung mehrerer Varianten, in denen der Essbereich ein besonderes Augenmerk erhält.
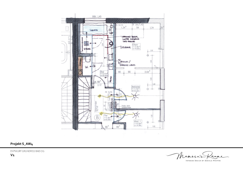
Beim Ankommen im Obergeschoss war es mir sehr wichtig den innenliegenden Flur so hell wie möglich zu gestalten.
In meiner Planung arbeite ich mit Glaswänden durch die möglichst viel Sonnenlicht aus den angrenzenden Räumen in den Flur gelangt.
Dem Bad im Obergeschoss habe ich mit meiner Planung eine ruhige Ordnung und einen Wohlfühlcharakter gegeben.
Der Waschtisch ist, ebenso wie die Badewanne, komplett eingebaut, so dass möglichst viel Stauraum und ruhige Oberflächen entstehen. Die beiden Elemente sind durch eine durchgängige Ablagefläche mit Sitzbank verbunden, auf der man sich nach dem Duschen noch etwas ausruhen und verweilen kann.
Meine Kundin liebt royale Farben, goldene Stilelemente und englische, sowie orientalische Details.
Es hat mir große Freude gemacht sie in meiner audiovisuellen Traumreise durch ihre neuen Räume zu führen und dabei auf all diese Details einzugehen.
In ihrer ganz persönlichen Traumreise habe ich all meine Ideen zu Oberflächen, Raumwirkung, Textilien, Farben, Leuchten und Stilelementen einfließen lassen.
Bei unserer Durchsprache der Grundrissvarianten ist durch diese Reise bereits ein plastisches Bild und eine emotionale Verbindung mit ihren neuen Räumen entstanden.
Kunde:
- Privat
Gebuchte Module:
- Grundriss






